・広々とした空間!
・国道沿いの店舗!
北見市・美幌町の不動産売買。売買実績500件超の地域密着不動産会社。相談無料。
・広々とした空間!
・国道沿いの店舗!
| 価格 | 700万円 |
|---|---|
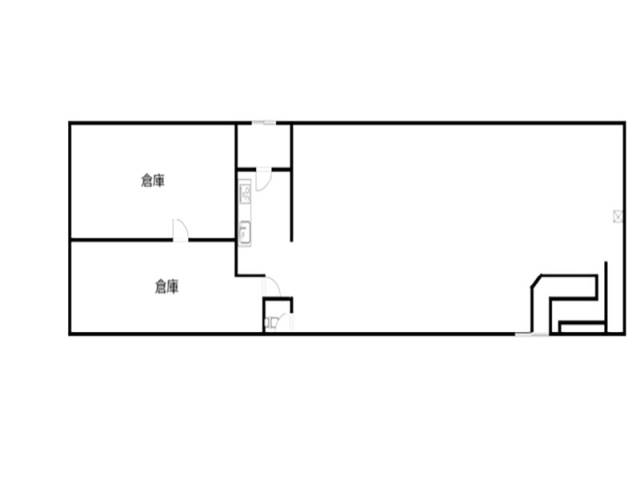
| 所在地 | 北海道 置戸町 北光 50-176 |
| 築年月 | 1995年12月 |
| 建物面積 | 153.56㎡(46.45坪) |
| 土地面積 | 2376㎡(718.74坪)(公簿(登記)) |
| 建物構造 | 木造 地上1階 |
| 学校区 | 置戸町立置戸小学校 , 置戸町立置戸中学校 |

・広々とした空間!
・国道沿いの店舗!
| 設備・特徴 |
|
|---|---|
| 備考 | ・広々とした空間! ・国道沿いの店舗! |
| 接道状況 | 角地道路 (北側公道 道路幅員12m 間口146.25m ) (南東側公道 道路幅員14m 間口24.66m ) |
|---|---|
| 駐車場 | 3台以上可 |
| 都市計画 | 非線引 |
| 地目 | 山林 |
| 用途地域 | |
| 地勢 | 平坦 |
| 建ぺい率 | 0% |
| 容積率 | 0% |
| 国土法届出 | 不要 |
| 現況 | 空家 |
| 引渡し | 即時 |
| 物件番号 | 2028 |
| 取引態様 | 専任 |
ご案内時・ご来店時の混雑緩和および感染症予防のため、予約の方、優先となっております。あらかじめご連絡いただきますとスムーズにご対応できますので、ご協力いただけましたら幸いです。上記フォーム以外、お電話でもご予約を受け付けております。
ご案内・資料請求・ご相談は無料です。
お気兼ねなくご相談ください!
北見店
イエステーション北見店 株式会社しろくま建物管理
〒090-0836 北海道北見市東三輪1丁目157番地5
イエステーション美幌店
〒092-0015 北海道網走郡美幌町新町3丁目55
北海道知事オホ(3)403号